TOCQUEVILLE
Vivre en commun au XXIème siècle
Axonométrie projet
Plan existant
Plan projet
Interventions en façade
Perspectives de la cour
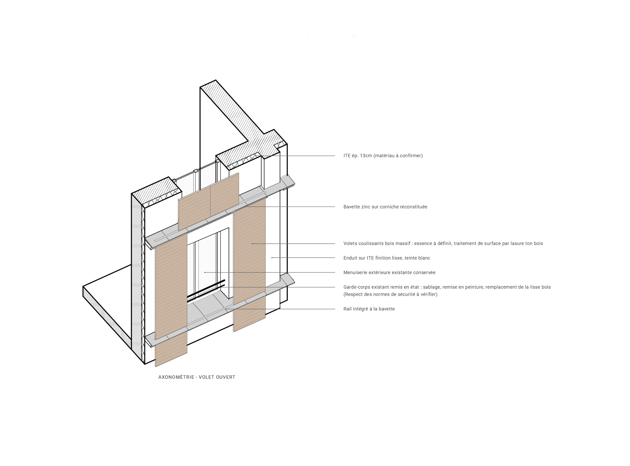
Axonométrie d’un module
Axonométrie d’un hall
Recherches sur différents types d’occultation
Réhabilitation et la rénovation énergétique d’un ensemble immobilier
Heavy rehabilitation and energy renovation of a building complex
Calendrier : 2024-2026
Programme : Logement
Structure/Matériaux : Maçonnerie diverse, bois
Lieu : Paris, France
Coût : 2 700 000 € HT
Surface : 220 m²
Acteurs : Atelier PoCo (architecte et ingénieur structure) ❙ Match Coordination (OPC et économiste) ❙ IE Conseil (ingénieur thermique et fluides)
Maître d’ouvrage : In’li
© Images : Poésie Constructive
